吊戸なしで開放的に。収納力と快適性がアップするキッチンリフォーム
安全と快適の
シニア向けリフォーム
詳細を見る

S様邸/
愛知県長久手市
| 築年数 | 5〜10年 |
|---|---|
| リフォーム箇所 | LDK |
| 施工期間 | 1週間 |
| 家族構成 | ご夫婦、お子様2人 |
| スタイル | クール |
| プラン | 家族:ご夫婦のわがままを叶えるLDK |
| 識別番号 | E200901040027 |
写真クリックで拡大します。
写真:枚
築間もないマンションで、快適な生活を送られていたS様。「より生活スタイルに合わせたリフォームが出来ないか?」とご相談をいただきました。
1.大好きな海をイメージしたリビング
2.子供とのコミュニケーションがより密に出来るキッチン空間
3.煩雑になりがちなパソコン廻りとLDKの小物をすっきり
と以上3点のご要望を実現するリフォームで、快適で居心地の良い生活空間を実現しました。
reform point
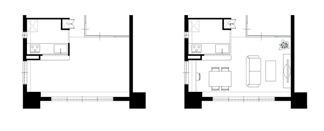
小学校と幼稚園に通う2人のお子様がいらっしゃるS様。袖壁でリビングの様子が見えなくなってしまうのがお悩みでした。開口を設けることで、、お子様を優しく見守りながら、楽しく会話ができるようになりました。空間的にも広がりが出て、開放感がプラスされました。
写真クリックで拡大します。
壁の一面を“家族が大好きな海”の色とする事で、部屋のアクセントになるとともに空間にメリハリも出来ました。ご主人の大切なサーフボードや観葉植物のグリーンもとても映えます。魅せる壁として生まれ変わりました。
写真クリックで拡大します。
収納兼パソコンデスクは、ご家族の要望を元にオーダーメイドしました。パソコンを使用しない時には、引き出しにキーボードを隠せるデザインとしましたので、とてもスッキリとしています。右側の収納は、可動棚とし、入れる物によって高さを調整頂けるようしました。
間取りはそのままですが、S様の生活スタイルに合わせて部分的にリフォームをしたことで、とても快適で居心地のよい空間へと生まれ変わりました。笑顔がとても似合うS様。さわやかな空間で、生活を楽しんでいらっしゃる様子が目に浮かびます。
写真クリックで拡大します。
floor plan
私たちが担当しました!

女性プランナー
藤井 愛
安全と快適の
シニア向けリフォーム
詳細を見る
安全と快適の
シニア向けリフォーム
詳細を見る
二世帯・三世帯が住む
大家族リフォーム
詳細を見る
安全と快適の
シニア向けリフォーム
詳細を見る
中古住宅
リノベーション
詳細を見る
中古マンション
リノベーション
詳細を見る
施工場所
よく検索されるワード
スタイル
その他絞り込み

どんなリノベーション・リフォームも
わたしたちが全力でサポートいたします!

リフォーム・リノベーションの
ご相談はこちらから!
月〜土 9:00〜18:00、日・祝 9:00〜17:00